Two Hill
A serene private home overlooking the Sandy Hook Bay.
Location:
Atlantic Highlands, New Jersey
Status:
Under Construction
Atlantic Highlands, New Jersey
Status:
Under Construction
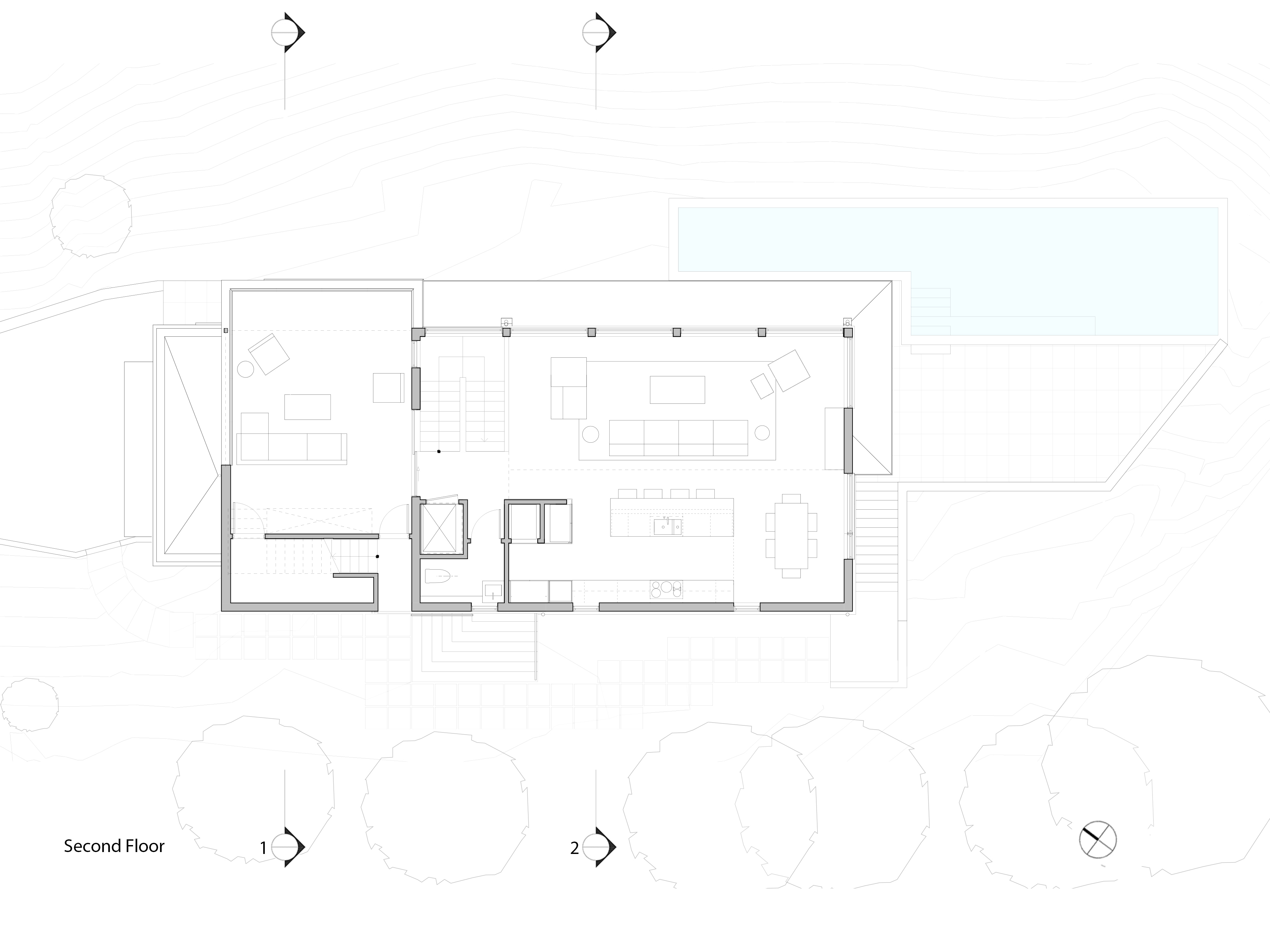
Two Hill is a 3-story private
residence sited on a steep sloping, picturesque lot with 270-degree
unobstructed views of the Sandy Hook Bay and distant NYC skyline.
The design for the home required very careful navigation of a variety of stringent local ordinances related to the steep sloping and unstable topography across the site. As such, substantial slope stabilization measures were necessitated to make redevelopment of the site viable. To minimize the home’s footprint relative to the slope, the house is designed largely within the footprint of the previous home, a one and a half story 1950’s Sears kit house.
The main living spaces are elevated to the uppermost floor to capture unobstructed views with an abundance of glass. An open living, dining and kitchen is connected to a generously sized, covered deck with a sun-drenched roof deck above. The first floor is organized with spaces for both gathering and retreat — each room carefully situated to capture views, both grand and intimate. The ground floor is composed of an office, lounge, recreational space, and secondary entry with access to the garage.
The design for the home required very careful navigation of a variety of stringent local ordinances related to the steep sloping and unstable topography across the site. As such, substantial slope stabilization measures were necessitated to make redevelopment of the site viable. To minimize the home’s footprint relative to the slope, the house is designed largely within the footprint of the previous home, a one and a half story 1950’s Sears kit house.
The main living spaces are elevated to the uppermost floor to capture unobstructed views with an abundance of glass. An open living, dining and kitchen is connected to a generously sized, covered deck with a sun-drenched roof deck above. The first floor is organized with spaces for both gathering and retreat — each room carefully situated to capture views, both grand and intimate. The ground floor is composed of an office, lounge, recreational space, and secondary entry with access to the garage.

