Beach Roost
A contemporary coastal house on the oceanfront in Long Beach Island.
Location:
Brant Beach, Long Beach Island, New Jersey
Status:
Completed, 2019
Brant Beach, Long Beach Island, New Jersey
Status:
Completed, 2019
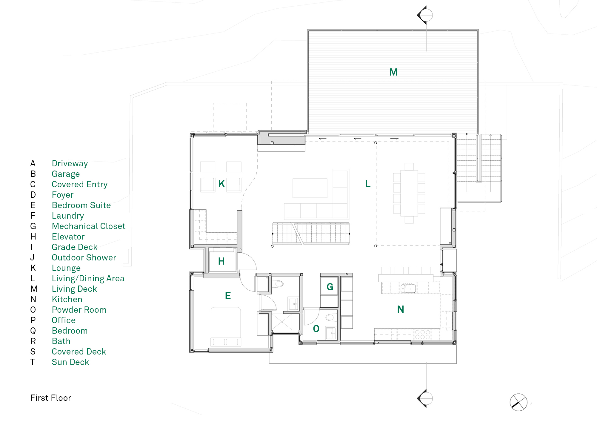
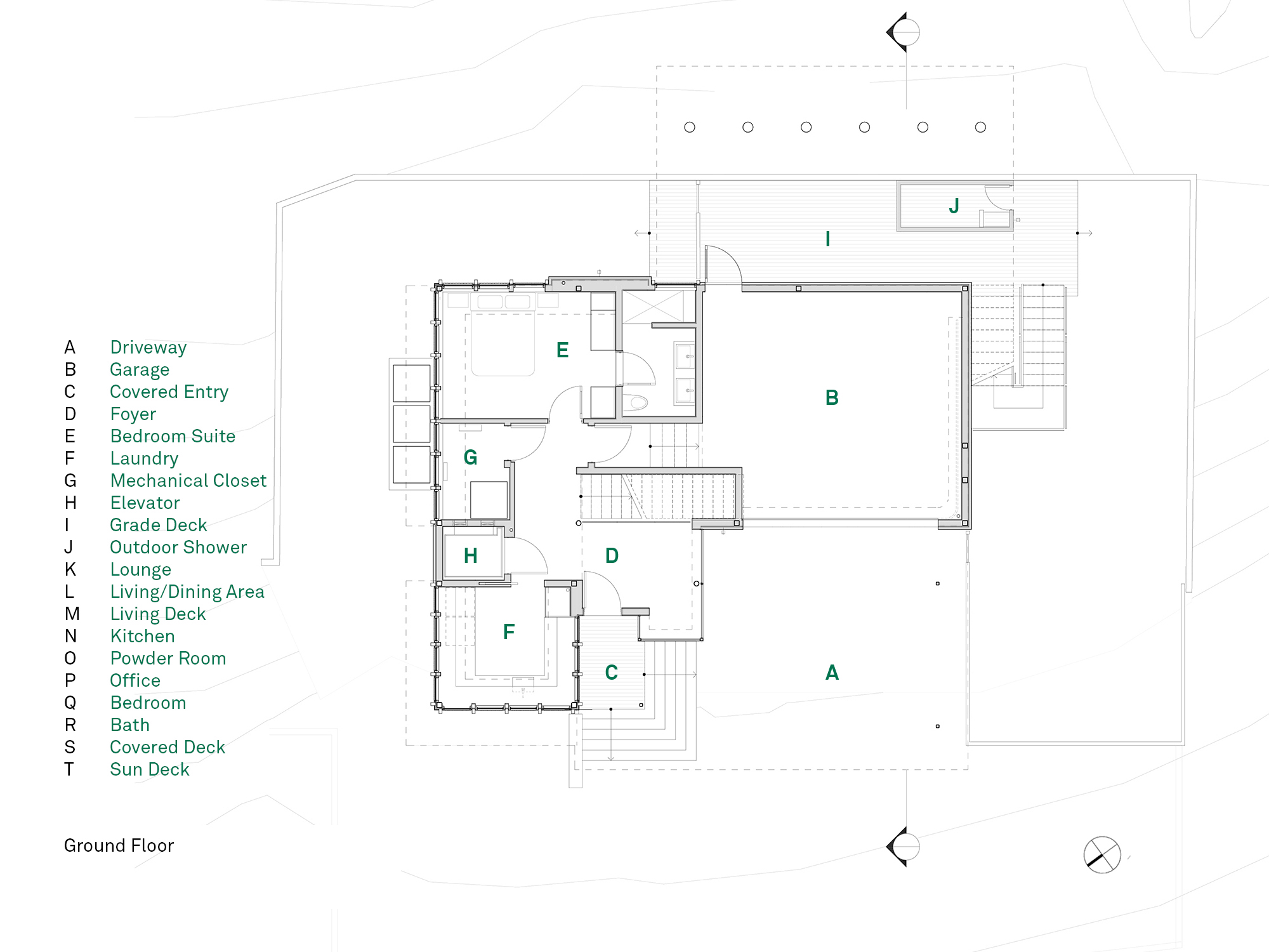
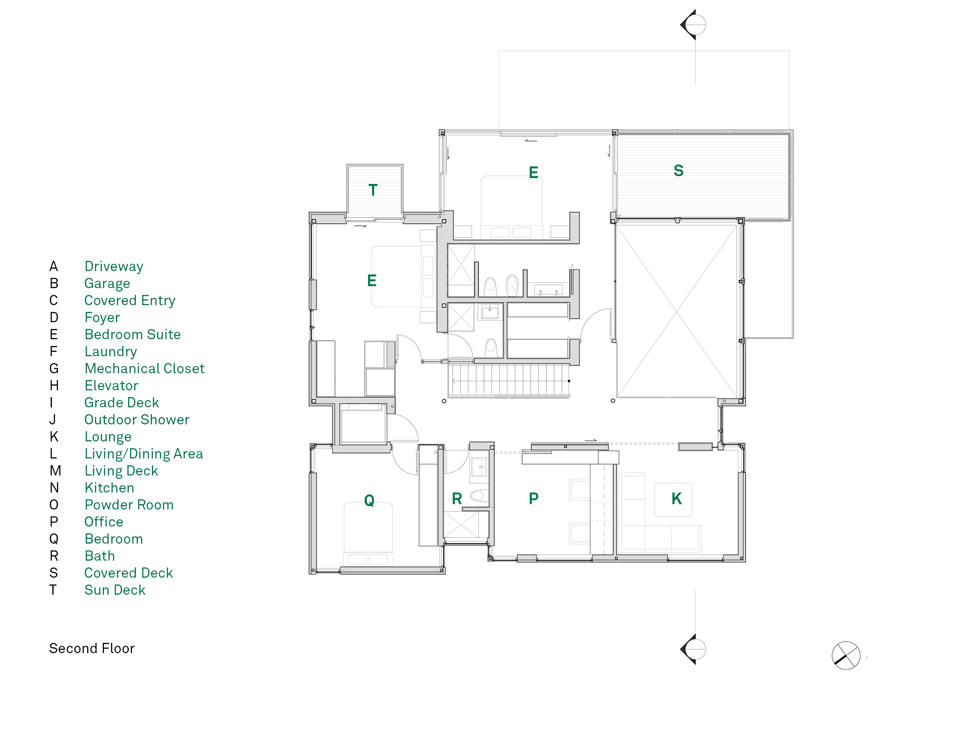
A delicately crafted residence that is nestled within the native sand dune vegetation of a private oceanfront lot in Long Beach Island, New Jersey. A generous open living, dining and kitchen area located on the first floor is carefully situated to capture ocean views while comfortably seated. Large sliding glass pocket doors merge the living area with a graciously sized exterior deck. The deck extends out into the dunes, hovering just above the natural vegetation below. Sleeping quarters are dispersed throughout the house, engaging with the site in a variety of sensitively considered ways. The main bedroom suite, located on the second floor, opens to a private covered exterior deck taking advantage of uninterrupted views.
The panelized cladding is utilized as a rainscreen and runs continuously over the facade, discreetly concealing exterior building components that would otherwise typically remain exposed. The result is a building that feels clean, uncluttered and quiet.
This project was a collaboration between Midouhas Architecture and Parnagian Architects.
Contributions:
Technical detailing and documentation, structural design, structural erection phase field administration and digital renderings by Parnagian Architects
Architectural design and post structural construction administration by Midouhas Architecture
The panelized cladding is utilized as a rainscreen and runs continuously over the facade, discreetly concealing exterior building components that would otherwise typically remain exposed. The result is a building that feels clean, uncluttered and quiet.
This project was a collaboration between Midouhas Architecture and Parnagian Architects.
Contributions:
Technical detailing and documentation, structural design, structural erection phase field administration and digital renderings by Parnagian Architects
Architectural design and post structural construction administration by Midouhas Architecture

